Entre lac et cimes Immobilier Agence
Vendu

Appartement 4 pièce(s) 3 chambre(s) 78.3 m²

Annecy (74600)
435 000 € Référence 18

A propos de ce bien

VIEUGY, compromis idéal entre maison et appartement, T4 de plain-pied s'ouvrant sur un jardin de 200 m², garage et place de parking privative.
Ce bel appartement est situé à Vieugy, au calme sans vis-à-vis, au fond d’une impasse, à 5 minutes à pieds de toutes les commodités : Commerces, médecins, école, piste cyclable jusqu'au centre ville. La ligne de bus 2 est aux pieds de la copropriété.
Le Centre ville d'Annecy et les accès autoroutiers sont à moins de 5 km.
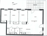
Au RDC d’un petit immeuble de 2009 comprenant seulement 5 appartements, ce beau T4 de 79 m² est un compromis idéal entre appartement et maison.
Ce bien de plain-pied est accessible une allée privative arborée totalement indépendante.
La porte d’entrée franchie, vous découvrirez une grande pièce à vivre lumineuse de 37 m² sans aucun vis-à-vis.
Cette belle pièce comprenant une cuisine ouverte Mobalpa, un séjour-salle à manger ouvrant sur une terrasse abritée d'un store électrique et un beau jardin arboré privatif de 200 m² au calme entouré de verdure.
Un couloir vous conduira vers
*Trois chambres dont 2 avec placard intégré donnant toutes sur le jardin.
*Une SDB avec baignoire et douche.
*Un WC séparé.
Un garage attenant de 15 m², une place de parking privative et un parking de copropriété compris dans le tarif complètent ce bien rare à la vente dans ce secteur.
Prix : 435 000€ FAI garage et stationnement privatif compris
N'hésitez pas à me contacter pour plus d'information
Au plaisir de vous rencontrer !
Séverine Favre-Petit-Mermet

Caractéristiques de ce bien

  • Surface 78,30 m²
  • carrez 79 m²
  • 3 chambre(s)
  • 1 salle(s) de bain
  • construit en 2009
  • cuisine américaine (équipée)
  • Chauffage individuel : autre (autre)
  • 1 garage(s)
  • 1 parking(s)
  • 1 niveau(x)
  • vue vue sur la verdure
  • terrasse
  • quartier annecy, vieugy

Diagnostics énergétiques

DPE
GES

Montant estimé des dépenses annuelles d'énergie pour un usage standard est compris entre 1 170 € et 1 640 € . Prix moyens des énergies indexés sur les années 2021, 2022 et 2023 (abonnements compris).

Informations financières

Prix de vente honoraires TTC inclus 435 000 €
Charges 71 €
Taxe foncière annuelle 1 011 €

Informations de copropriété

Copropriété Oui
Nombre de lots 60

Calcul des mensualités

* Champs obligatoires